Nabb Research Center Online Exhibits
  • Collections
    • Artifacts
    • Digital Images
  • Exhibits
    • Current Exhibits
    • Past Exhibits
  • Nabb Center Website
Floor plan Level 1-- 8X10.jpg
  • ← Previous Item
  • Next Item →

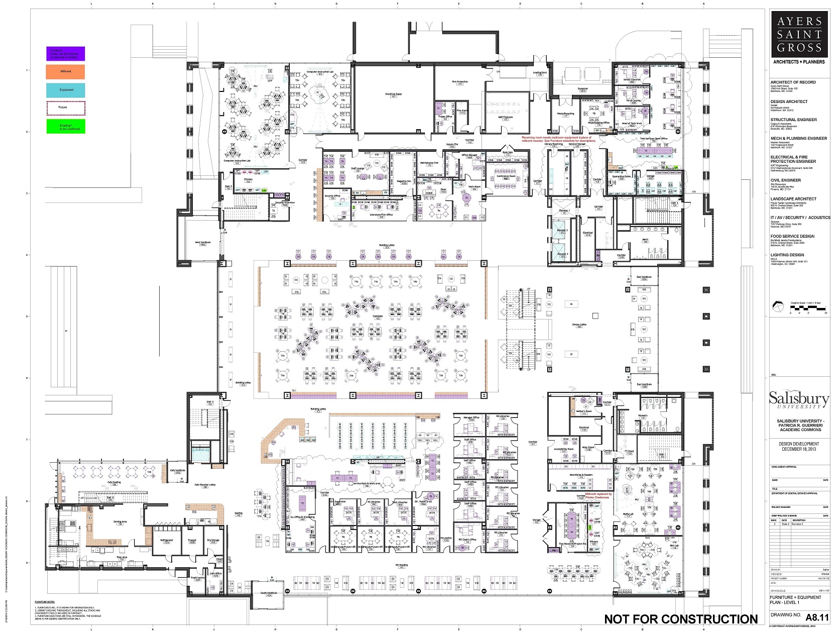
Guerrieri Academic Commons first floor design plan, 2013

Dublin Core

Title

Guerrieri Academic Commons first floor design plan, 2013

Description

First floor design development plan for the Guerrieri Academic Commons created December 18, 2013 by Ayers Saint Gross.

Creator

Ayers Saint Gross

Source

Records of the Library (SUA-001), University Archives at the Nabb Research Center, Salisbury University (Salisbury, Maryland)

Date

December 18, 2013

Format

JPEG

Type

Still image

Citation

Ayers Saint Gross, “Guerrieri Academic Commons first floor design plan, 2013,” Nabb Research Center Online Exhibits, accessed December 14, 2025, http://www.sulibraries.org/nabb-online/items/show/211.

Output Formats

  • atom
  • dcmes-xml
  • json
  • omeka-xml

Proudly powered by Omeka.